Apt Roma Nord

Progetto d’interni in un attico al quarto piano di una palazzina romana sita nel settore nord orientale della città.
La luce naturale attraversa tutti gli ambienti di questa abitazione con tre diversi affacci.
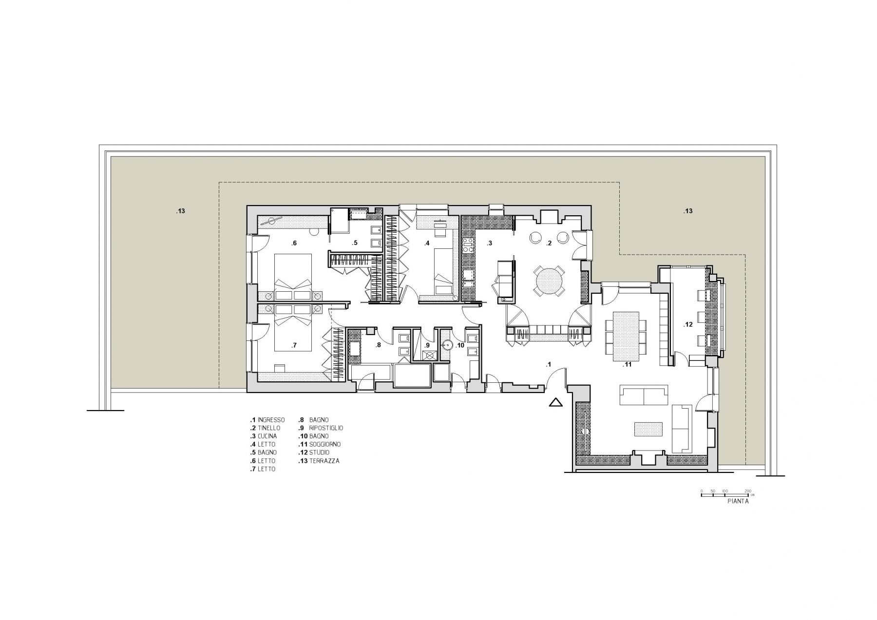
L’impianto planimetrico dell’abitazione è regolare, studiato sullo sviluppo di un asse principale che taglia in senso longitudinale tutto l’appartamento e pone visivamente in continuità le parti estreme dell’abitazione, conferendo un senso di sviluppata spazialità basato sulla grande profondità.
L’ingresso e la zona pranzo sono divisi da un “monolite” in legno che maschera due pilastri ed una trave calata, che prima della ristrutturazione si leggevano in maniera evidente.
Il monolite nell’ambito dell’ingresso funziona come guardaroba mentre dalla parte opposta come servizio della zona pranzo.
Il monolite come gli altri elementi d’arredo si riflette nelle lastre lucide di marmo Carrara “c” come in uno specchio d’acqua favorendo una forte diffusione luminosa. Leggerezza, evanescenza, riflessione e la forte diffusione luminosa si contrappongono alla massività dell’elemento d’arredo pieno creando un gioco di alternanza tra volumi e vuoti. Tagli luminosi delimitano le transizioni tra le diverse quote dei controsoffitti che caratterizzano gli ambienti. Per i bagni sono state utilizzate pietre in granito nero assoluto e quarzite naturale per i lavabi.

ClientePrivato
CategoriaResidenziale
UbicazioneRoma
Anno2015
CronologiaOttobre 2014 - Luglio 2015