Uffici Pardgroup

Progetto di rinnovamento, sistemazione e arredo degli uffici della sede di Roma della società Pardgroup S.r.l.
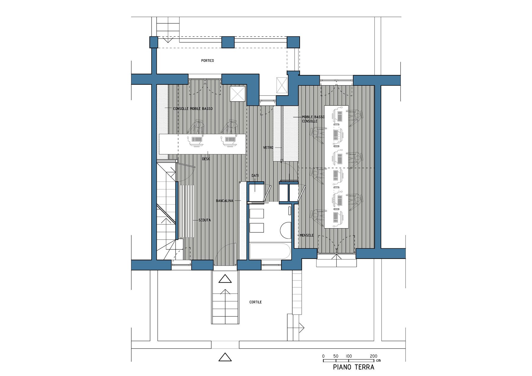
Il piano terra degli uffici era caratterizzato da spazi angusti e di difficile fruizione. La richiesta della committenza era di aumentare le postazioni di lavoro aumentando lo standard qualitativo dei luoghi e creando degli spazi distinti per funzione. L’intervento ha prodotto due spazi distinti funzionalmente divisi da una vetrata per dare modo agli impiegati di poter percepire visivamente quanto più spazio possibile per determinare una condizione dal punto di vista psicologico migliore.
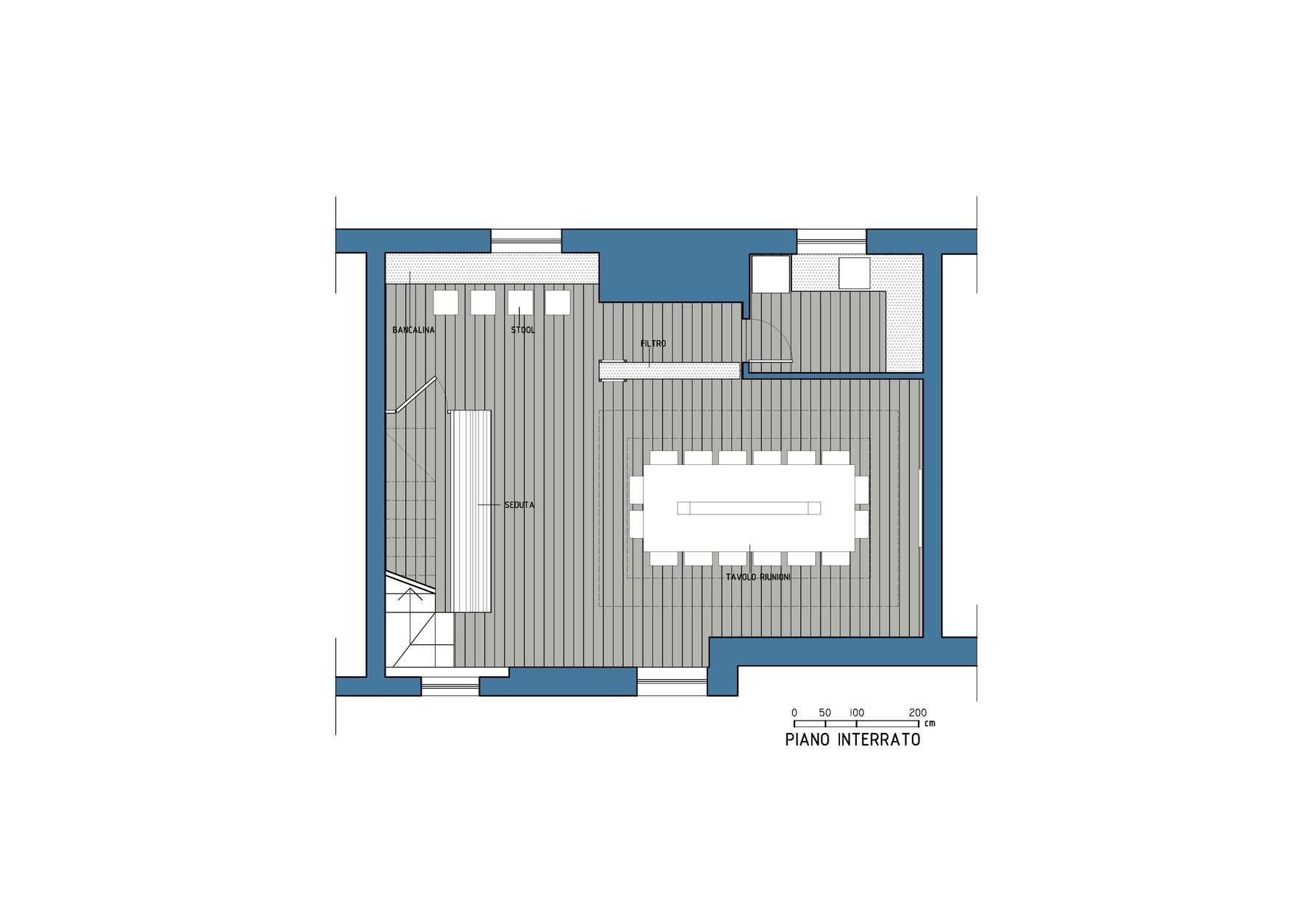
Al piano interrato si richiedeva lo sviluppo di un ambiente sala per le riunioni che potesse sviluppare la massima capienza, ed un’area a servizio degli impiegati. Le geometrie irregolari della sala portavano alla creazione di una simmetria “autonoma” del sistema tavolo e soprastante controsoffitto, strutturato come una sorta di grande lampadario.
Una seduta ispirata alla tipologia della panchina romana maschera con il prolungamento verticale del suo schienale la scala di collegamento con il piano superiore. Tutti gli arredi sono stati realizzati su progetto.

ClientePardgroup
TipologiaUffici
UbicazioneRoma
Anno2015
Cronologiaottobre 2015 – gennaio 2016
uffici_pardgroup_architetto_morgantini_pianta
uffici_pardgroup_architetto_morgantini_pianta