Ocean Blue - Art Cafe’

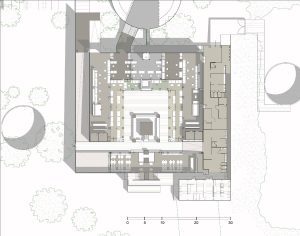
L’edificio delle dimensioni orientative di 45x45m a pianta quadrata, viene realizzato sul terreno in pendenza del parco del galoppatoio di villa Borghese. Il terreno su cui sorge è caratterizzato da differenze di livello che offrono l’occasione per la creazione di una struttura a gradoni definendo ‘diverse terrazze che affacciano l’una sull’altra con un accentramento verso l’enorme bar posizionato al centro della pista posto al livello più basso. Il bar si dispone lungo il perimetro basamentale del palco centrale. La struttura perimetrale di tamponatura viene rivestita con pannelli fonoassorbenti. E’ presente un ristorante con bar annesso e cucine. La realizzazione della grande torre posta al livello più alto costituisce il landmark che dà visibilità all’edificio. Sono presenti n.5 bar tra i quali uno a torre ubicato nella porzione sopraelevata massima del locale. Sono presenti inoltre servizi quali bagni.

CommittenteArt Cafè
TipologiaLocale di Pubblico spettacolo- struttura temporanea
LuogoVilla Borghese, Roma
Anno2010
TeamArchitetti: Morgantini, Tius, Pinducciu, Martinez

L’edificio delle dimensioni orientative di 45x45m a pianta quadrata, viene realizzato sul terreno in pendenza del parco del galoppatoio di villa Borghese. Il terreno su cui sorge è caratterizzato da differenze di livello che offrono l’occasione per la creazione di una struttura a gradoni definendo ‘diverse terrazze che affacciano l’una sull’altra con un accentramento verso l’enorme bar posizionato al centro della pista posto al livello più basso. Il bar si dispone lungo il perimetro basamentale del palco centrale. La struttura perimetrale di tamponatura viene rivestita con pannelli fonoassorbenti. E’ presente un ristorante con bar annesso e cucine. La realizzazione della grande torre posta al livello più alto costituisce il landmark che dà visibilità all’edificio. Sono presenti n.5 bar tra i quali uno a torre ubicato nella porzione sopraelevata massima del locale. Sono presenti inoltre servizi quali bagni.